Produkter
HJEM > Produkter
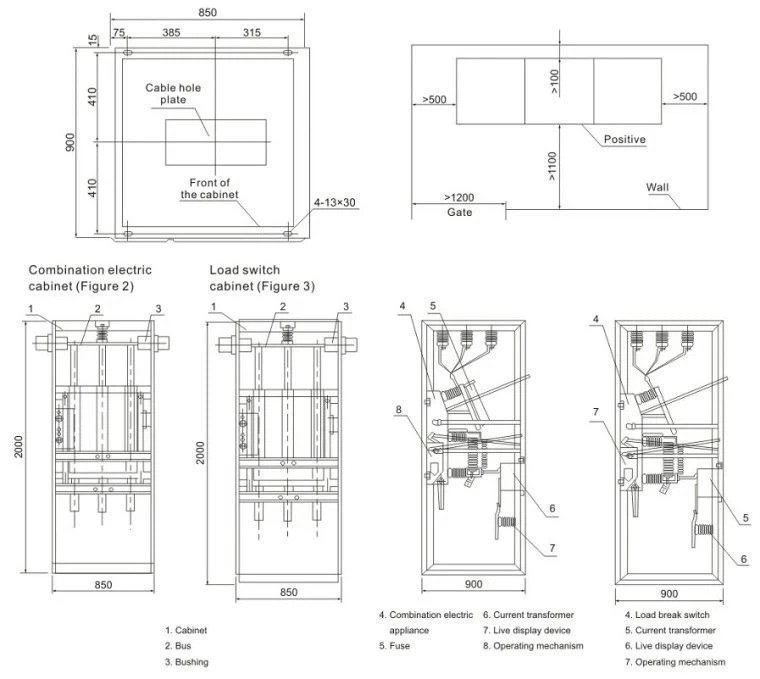
35kV fast lukket ringkoblingsutstyr for distribusjon
  • 35kV fast lukket ringkoblingsutstyr for distribusjon35kV fast lukket ringkoblingsutstyr for distribusjon

35kV fast lukket ringkoblingsutstyr for distribusjon

Comewill er en profesjonell produsent i Kina. Vårt 35kV faste lukkede ringkoblingsanlegg for distribusjon (heretter referert til som "ringhovedenhet") for kraftfordeling. Dette er et høyspentbryterutstyr spesielt designet for kraftdistribusjonssystemer, egnet for anskaffelses- og utvalgsbehov for kraftinfrastrukturprosjekter, og er et ideelt valg for anskaffelsesbeslutninger.

Som kjerneutstyret for distribusjonsnettverkskontroll og beskyttelse, kan Comewill høykvalitets 35kV fast lukket ringkoblingsutstyr for distribusjon laget i Kina stabilt produsere pålitelig kraft i ulike applikasjonsscenarier, for eksempel urbane kraftnettkonstruksjon og renoveringsprosjekter, industri- og gruvebedrifter, høyhus og offentlige anlegg oppfyller fullt ut kjernekravene til kjøpere for utstyrsytelse.

Denne ringhovedenheten med fast design har blitt det foretrukne produktet for innkjøp av moderne kraftdistribusjonssystem, og tilbyr deg en kostnadseffektiv kraftinfrastrukturkonfigurasjon.

Tekniske data

Serienummer Punkt Enhet Data
1 Nominell spenning kV 12 40.5
2 Nominell frekvens Hz 50/60
3 Merkestrøm A 630 630/1250
4 Nominell strømfrekvens tåler spenning (1 min) Faser og til jorden kv 42 95
Isolerende avstander 48 118
Vurdert lyn implusmotstå spenning Faser og til jorden 75 185
Isolerende avstander 85 215
Strømfrekvens tåler spenning (kontroll- og hjelpekrets) 2
5 Vurdert korttidsmotstå strøm kA 20/25 31.5
6 Nominell topp tåle strøm kA 50/63 80
7 Varighet av nominell kortslutningsstrøm s 4 4
8 Nominell kortslutningsbrytestrøm kA 20/25 31.5
9 Nominell kortslutningsstrøm kA 50/63 80
10 Lysbuevarighet s 1 1
11 Vurdert driftssekvens
0-0,3s-CO-3min-CO
12 Isolerende gass
SF6
13 Årlig lekkasjerate % ≤ 0,01
14 Standard grad av beskyttelse Forseglet gassboks
IP67
Koblingsskap IP4X
15 Nominell inflasjonstrykk MPa 0.03
Minimum funksjonsnivåtrykk 0.01
16 Nominell forsyningsspenning til hjelpekretsen V DC 24, 48, 110, 220, AC220
17 Mekanisk liv Strømbryter Operasjon 10000 11000
Isolasjonsbryter 5000 3000
Jordingsbryter 5000 3000
18 Elektrisk utholdenhet av effektbryter Operasjon 30(E2)
19 Tap av tjenestekontinuitet
LSC2

Tekniske driftsmiljøparametere

·Omgivelsestemperatur: -10°C ~ +40°C
· Høyde: Høyspent ≤1000m; Lavspent ≤2500m (tilpasset design tilgjengelig for anskaffelse over rekkevidde)
·Relativ fuktighet: ≤85 %
· Seismisk intensitet: ≤ Magnitude 8
·Miljømessige forutsetninger: Ingen brann-/eksplosjonsfare, ingen alvorlig forurensning, ingen kjemisk korrosjon, ingen voldsomme vibrasjoner (anskaffelsesstedet må oppfylle disse)

Gjennom den utrettelige innsatsen til alle våre ansatte forbedrer vi kontinuerlig kvalitetsstyringen vår for å sikre at vårt 35kV faste lukkede ringkoblingsanlegg for distribusjon forblir en kilde til tillit for våre kunder. Vårt mål er å gi kundene det mest omfattende testsystemet og de best egnede løsningene, for å maksimere kundetilfredsheten. Vi følger prinsippene om kunde først, markedsorientering og effektivitet, og dyrker kontinuerlig vårt talent.

Hot Tags: hovedenhet med metallomsluttet ring, Kina, produsenter, fabrikk, pris, 630A luftbelastningsbryter, innendørs 24kv gass LBS, SF6-frakoblingsbryter, Utendørs porselenskledd vakuumkretsbryter, Enfaset spenningstransformator 20kV, Break Vacuum Cirgeer Switch

Hot Tags: 35kV fast lukket ringkoblingsutstyr for distribusjon, Kina, produsent, leverandør, fabrikk, engros, tilpasset, på lager, laget i Kina, lav pris, kvalitet
Send forespørsel
Kontaktinfo
Send en forespørsel til Comewill for koblingsanlegg, vakuumbrytere, strømtransformator. Få tilpassede tilbud, lave priser eller ekspertstøtte fra vårt Kina-fabrikkteam.
X
Vi bruker informasjonskapsler for å gi deg en bedre nettleseropplevelse, analysere nettstedstrafikk og tilpasse innhold. Ved å bruke denne siden godtar du vår bruk av informasjonskapsler. Personvernerklæring
Avvis Akseptere